0532-85879888
当前位置:CAD下载

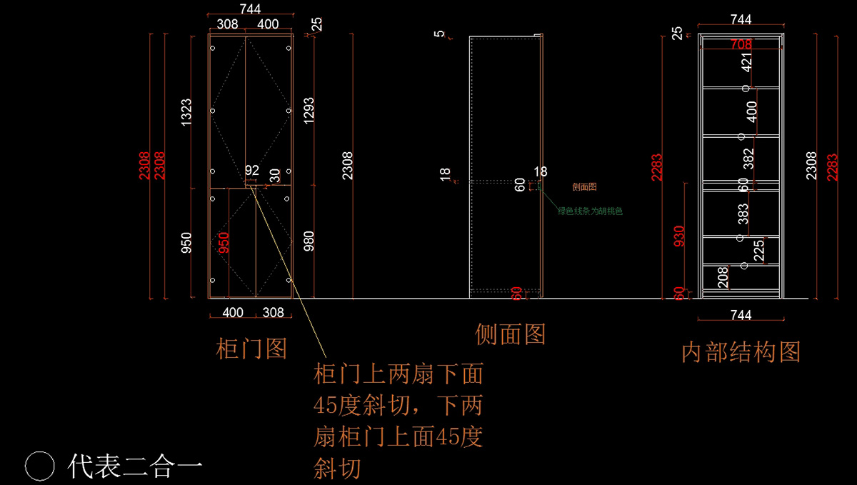
HS-CAD-YTG-g636

分类:阳台柜
宽度:744
标题:HS-CAD-YTG-g636
工厂编号:0
下载地址:gao/HS-CAD-YTG-g636.dwg